Mehrzwecktüren NovoPorta Plano MZ

Novoferm Mehrzwecktüren NovoPorta Plano mit flächenbündig stumpf einschlagenden Türblättern stehen Ihnen für den Innen- und Außeneinsatz zur Verfügung.

Ihre Vorteile im Überblick!

Ein- und zweiflügelige Mehrzwecktüren aus Stahl für den Innen- und Außeneinsatz

Geprüfte Leistungseigenschaften nach DIN EN 14351-1 mit CE-Kennzeichnung

Türblatt flächenbündig stumpf einschlagend, 64 mm dick, Blechdicke 1,0 mm

Hochwertige Mineralwolle als Isolierfüllung

Türblatt und Zarge verzinkt und grundiert (pulverbeschichtet) ähnlich RAL 9016

Animation zu Multifunktions-Stahltüren

 

In dieser Animation werden die Highlights und Möglichkeiten von Novoferm Multifunktions-Stahltüren in visuell ansprechender und komprimierter Form vorgestellt.

Weitere Animationen finden Sie unter:

https://www.youtube.com/NovofermVideos

Ausstattungen

Montage

In jedem Umfeld attraktiv, in vielen Wänden fix montiert!

Die NovoPorta Plano sieht einfach immer gut aus. Das liegt zum einen an den vielen verfügbaren Oberflächen und Farben, die von RAL nach Wahl über Super-Dekor-Holzoberflächen bis hin zu Designfolien-Beschichtungen reichen. Zum anderen wird die Plano im Standard ohne Bodeneinstand geliefert. Das ist z. B. ideal für den Trockenbau und ermöglicht zudem, die Tür erst spät im Bauablauf zu montieren. Die Folge ist ein deutlich geringeres Beschädigungs-Risiko.

Was bringt das attraktivste Türdesign, wenn beim Einbau wegen komplizierter Montageverfahren die Tür oder gar Bodenbelag und Wände beschädigt werden?
Ideal, wer sich für eine NovoPorta Plano entscheidet, denn hier stehen verschiedene, durchweg schnelle, einfache und saubere Montageverfahren zur Auswahl.

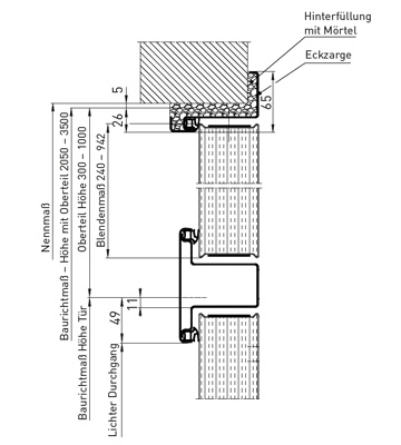
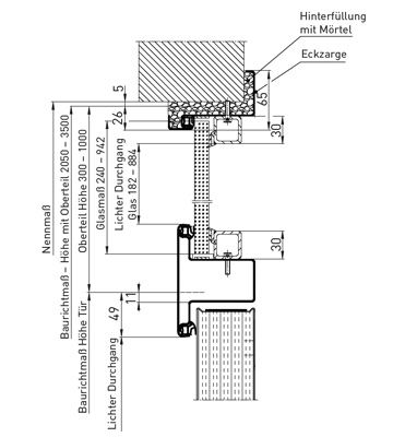
Je nach Wandart kann z. B. die Falz-Schraubmontage mit einer Eckzarge oder einer zweiteiligen Umfassungszarge 2240B verwendet werden. Letztere besteht aus einer Eckzarge und einer speziellen Gegenschale 2240B. Der Clou dabei: Die Eckzarge kann auch nachträglich noch um die Gegenschale ergänzt werden. Zur Zargenhinterfüllung bieten sich – schnell und sauber – lose Mineralwolle* und Novoferm Brandschutzschaum an oder klassischer Mörtel.
Mit zweischaligen Zargen wie der 2240B geht das ganz besonders schnell, denn hier darf die Gegenschale leer bleiben, lediglich die Eckzarge muss hinterfüllt werden. In manchen Fällen darf beim Zargenprofil 2240B sogar ganz auf die Hinterfüllung verzichtet werden – geprüft nach EN 1634 und bauaufsichtlich zugelassen für Deutschland und Europa.

Technik