NovoFire® Aluminium-Systeme

Systeme für Türen und Wände

NovoFire® Profilrahmensysteme aus Aluminium sind wie geschaffen für den modernen Objektbau. Mit eleganten Oberflächen, zeitlosem Design und zahlreichen Varianten bieten sie dem ambitionierten Architekten und Planer schier unbegrenzte Möglichkeiten bei der Gestaltung von transparenten Feuer- und Rauchschutzabschlüssen im Innenbereich. Dabei sind ein- und zweiflügelige Türen mit Oberlichtern und Seitenteilen überaus vielfältig miteinander kombinierbar.

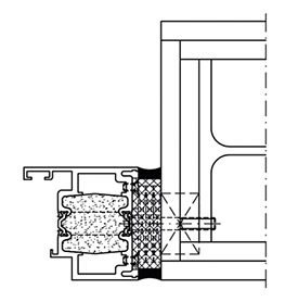
NovoFire®-Systeme sind mit ihrer Profilwandstärke von 4 mm besonders stabil und mit nur einem mittig verankerten Brandschutzkern äußert kompakt konstruiert. So ergibt sich dann auch für alle Ausführungen eine einheitlich gleiche Ansichtsbreite von 150 mm. Auf vielfachen Wunsch neu im Programm ist die Oberfläche „Aluminium eloxiert” in Edelstahloptik.

Ihre Vorteile im Überblick!

Rauchdichtigkeit nach DIN 18095

Feuerwiderstandsklassen T30 (EI2 30) / F30 oder T90 (EI2 90) / F90 nach DIN 4102

Einbruchhemmung nach DIN EN V1627 für T30 (EI2 30)-Türen in den Klassen RC1 (WK1) oder RC2 (WK2), optional auch RC3 (WK3)

Ein- oder zweiflügelige Rauch- / Brandschutztüren kombinierbar mit Festelementen in beliebiger Sprossenaufteilung bis 4,0 m (F90) bzw. 5,0 m (F30) Höhe

Obentürschließer, E-Öffner oder auch Anti-Panik-Funktionen nach DIN EN 179 oder DIN EN 1125 sind integrierbar

Durchgehende Ansichtsgleichheit aller Systeme und beliebige Kombinierbarkeit von Türen, Seitenteilen und Oberlichtern

Zargen- und Türprofil liegen flächenbündig nebeneinander

Zahlreiche Einsatzmöglichkeiten und maximale Gestaltungsfreiheit

Rohrrahmentüren mit Sonderausstattungen

Technik zu Aluminium-Systemen

Montage

Montage einer Rohrrahmentür

Die Montage von Rohrrahmentüren können Sie sich bei Klick auf die Animation auf der linken Seite in animierter Form anschauen. In diesem Video verdeutlichen wird die einzelnen Montageschritte am Beispiel einer NovoFire(R) Alu T30 (EI2 30) visuell im Detail.

Zahlreiche weitere Animationen / Videos finden Sie im Novoferm YouTube-Channel:

https://www.youtube.com/user/NovofermVideos

Einbau an bekleidete Stahlstützen

Flächenbündig T30 und rauchdicht
Freie Wahl unter zwei Montageverfahren:
• Durchsteckmontage
• Anschweißmontage
Bei rauchdichter Ausführung immer beidseitig versiegeln