SAVU- JA PALOSUOJALUKUOVET

NOVOSLIDE INDUSTRY -KOHOKOHDAT

Testattu paloturvasuojaksi teollisuus- ja liikerakennuksiin eurooppalaisten standardien EN 16034 ja EN 13241 mukaisesti

Monet erittäin suuret rakennukset, kuten monikerroksiset pysäköintialueet, maanalaiset autotallit ja ostoskeskukset, tarvitsevat erityisiä portteja. Tähän on monia syitä, erityisesti turvallisuusvaatimuksilla on tärkeä rooli. Tämäntyyppiset palosuojaukset kuuluvat eurooppalaisten tuotestandardien EN 16034 (“palosuojaukset”) ja EN 13241 (”ovet”) piiriin. Novofermin uusi palosuojaliukuovi NovoSlide Industry on kehitetty vastaamaan näitä vaativia eurooppalaisia tuotestandardeja. CE-merkittyjä komponenttioviamme voidaan sen vuoksi käyttää luotettavasti kaikkialla Euroopassa. Ovi täyttää kaikki yleiset aikaluokat noudattaen erilaisia eurooppalaisten rakennuslakien vaatimuksia.

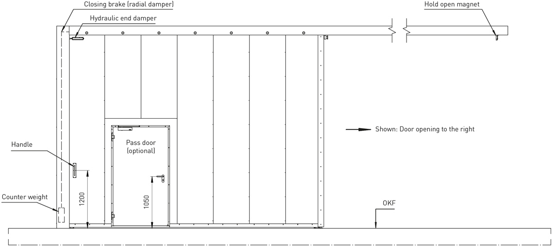
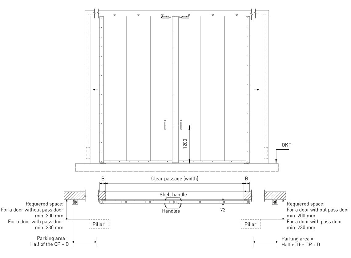
Palonestoliukuovet erottavat rakennusten eri palo-osastot toisistaan. NovoSlide Industry -palosuojaliukuovi täyttää tämän tehtävän erityisen hyvin erityisen helpon asennuksensa ja erinomaisten palontorjuntaominaisuuksiensa ansiosta. Koska NovoSlide Industry -palonsuojaliukuovet koostuvat yksittäisistä tehtaalla valmiiksi kootuista komponenteista, asennus on helppo ja nopea. Erityisesti yksittäisten paneelien rivitys kiskolle säästää aikaa, koska jokaisella paneelilla on erillinen juoksurulla.
NovoSlide Industry osoittautuu myös erittäin palonkestäväksi luokituksensa kannalta, koska ovi on testattu jopa palosuojausluokkaan EI2 120 saakka. 120 minuutin kuluttua palotestiuunin lämpötila on reilusti yli 1 000 °C. Näissä lämpötiloissa oven lisäksi myös testiseinän muuraus on kovalla rasituksella. Näissäkään olosuhteissa liukuovella ei saa ilmetä lähes mitään muodonmuutoksia palotestin aikana, ja sen on täytettävä erittäin tiukat huoneiden sulkemista ja lämmöneristystä koskevat vaatimukset.
 

SINUN ETUSI LYHYESTI

Erityisen nopea ja helppo asennus

Useat tehtaalla esiasennetut komponentit säästävät aikaa asennuspaikassa

Paneelit on helppo järjestää erillisillä juoksurullilla paneelia kohden

Paikan päällä tehtävä paneelien tiivistys silikonilla ei ole välttämätöntä Sa:lle ja S200:lle, koska paneeliliitosten välinen tiiviys taataan jo tehtaalla asennetuilla tiivisteillä

TEKNISET TIEDOT